- +86 13962947398
- sales@yutungindustrial.com
- WhatsApp 7day-24h
DQ Type Elevator Bucket Overview
DQ type elevator bucket is a shallow bottom bucket designed in metric dimensions. It corresponds to the DS type (deep bottom) bucket, with both types sharing similar A and B dimensions, such as DQ2314 and DS2314.
This structural compatibility allows flexible selection based on conveying requirements while maintaining system consistency.
Working Principle
Unlike DS buckets that rely on gravity discharge, DQ buckets operate based on centrifugal force. They are designed for high-speed bucket elevator systems, where sufficient rotational speed generates the centrifugal force required for material discharge.
Applications
DQ type elevator buckets are widely used in:
- Powder material conveying
- Grain and feed processing
- Agricultural bulk material handling
- Light bulk material systems
They are especially common in European markets, with typical applications found in systems such as those used by STIF (France).
Product Features
The DQ bucket is designed for efficient handling of powder and light materials in high-speed conveying environments.
- Shallow bottom design for controlled discharge
- Optimized for high-speed centrifugal operation
- Suitable for powder and fine materials
- Metric size for compatibility with European systems
- Reliable performance in continuous conveying
Material Options
Available materials include:
- HDPE – lightweight, cost-effective, suitable for general applications
- Nylon – higher strength and wear resistance
- PU (Polyurethane) – excellent impact resistance and longer service life
Different materials can be selected based on working conditions such as abrasion, temperature, and impact requirements.
Use advice
- It is suitable for high-speed centrifugal discharge and light bulk material lifting;
- A, B and C sides shown below table is for HDPE material. For the different shrinkage of different materials Nylon and PU elevator bucket size approximately increased by 2%;
- Recommend using (Z-Y)+5% capacity data as your engineering design use.
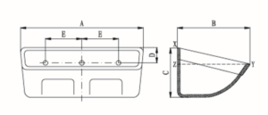
Technical Drawing
Specifications
| Model | Bucket Dimension(mm) | Mounting Holes(mm) | Capacity(L) | |||||||
| Length A |
Proj. B |
Depth C |
From Top D |
Hole Centres E |
No. of Holes |
Hole diameter |
Total Level (X-Y) |
Usable Level (Z-Y)+5% |
Water Level (Z-Y) |
|
| DQ1009 | 106 | 93 | 66 | 25 | 50 | 2 | 7 | 0.40 | 0.22 | 0.21 |
| DQ1311 | 136 | 118 | 72 | 25 | 60 | 2 | 7 | 0.50 | 0.32 | 0.30 |
| DQ1312 | 135 | 117 | 85 | 30 | 60 | 2 | 7 | 0.70 | 0.64 | 0.61 |
| DQ1613 | 168 | 132 | 80 | 25 | 90 | 2 | 9 | 1.05 | 0.79 | 0.75 |
| DQ1814 | 184 | 132 | 83 | 30 | 100 | 2 | 9 | 1.10 | 0.84 | 0.80 |
| DQ1914 | 190 | 147 | 117 | 35 | 100 | 2 | 9 | 1.78 | 1.31 | 1.25 |
| DQ2312 | 234 | 125 | 95 | 35 | 120 | 2 | 9 | 1.50 | 1.16 | 1.10 |
| DQ2314 | 237 | 143 | 96 | 30 | 120 | 2 | 9 | 1.90 | 1.47 | 1.40 |
| DQ2315 | 235 | 155 | 91 | 30 | 120 | 2 | 9 | 2.00 | 1.68 | 1.60 |
| DQ2316 | 234 | 160 | 97 | 35 | 120 | 2 | 9 | 2.00 | 1.47 | 1.40 |
| DQ2417 | 242 | 178 | 115 | 40 | 120 | 2 | 9 | 3.00 | 2.36 | 2.25 |
| DQ2616 | 260 | 167 | 144 | 50 | 80 | 3 | 9 | 2.20 | 1.32 | 1.25 |
| DQ2814 | 287 | 143 | 94 | 30 | 90 | 3 | 9 | 2.20 | 1.79 | 1.70 |
| DQ2815 | 275 | 153 | 91 | 30 | 90 | 3 | 9 | 2.60 | 2.21 | 2.10 |
| DQ2816 | 278 | 158 | 108 | 35 | 90 | 3 | 9 | 2.70 | 2.10 | 2.00 |
| DQ2817 | 280 | 173 | 121 | 40 | 90 | 3 | 9 | 3.20 | 2.31 | 2.20 |
| DQ2824 | 280 | 244 | 169 | 45 | 100 | 3 | 9 | 6.40 | 5.25 | 5.00 |
| DQ3216 | 319 | 158 | 111 | 35 | 80 | 4 | 9 | 3.00 | 2.20 | 2.10 |
| DQ3321 | 330 | 215 | 138 | 40 | 85 | 4 | 9 | 5.90 | 4.43 | 4.22 |
| DQ3325 | 331 | 256 | 166 | 50 | 85 | 4 | 9 | 8.50 | 6.90 | 6.60 |
| DQ3823 | 382 | 230 | 165 | 45 | 100 | 4 | 9 | 8.00 | 6.40 | 6.10 |
| DQ3917 | 393 | 170 | 130 | 40 | 100 | 4 | 9 | 5.00 | 3.42 | 3.25 |
| DQ4423 | 447 | 232 | 163 | 45 | 90 | 5 | 9 | 9.00 | 7.25 | 6.90 |
| DQ4723 | 475 | 231 | 161 | 45 | 95 | 5 | 9 | 10.20 | 7.67 | 7.30 |
| DQ4726 | 461 | 255 | 170 | 50 | 95 | 5 | 11 | 12.00 | 8.72 | 8.30 |
| DQ5121 | 519 | 225 | 168 | 50 | 100 | 5 | 11 | 10.76 | 9.46 | 8.60 |
| DQ5626 | 560 | 260 | 175 | 50 | 115 | 5 | 11 | 14.20 | 11.10 | 10.60 |
Note: Fitting holes and hole diameter can be customized.
👉 Not sure which bucket fits your system?
Tell us your application or required size — we will recommend the right model within 24 hours.
Compared with DS type buckets
- DQ type – shallow bottom, centrifugal discharge, suitable for high-speed systems and light materials
- DS type – deep bottom, gravity discharge, suitable for lower-speed systems and larger particle materials
Both types share similar dimensions (e.g., DQ2314 and DS2314), allowing flexible replacement based on application requirements.
Performance Advantage
DQ type elevator buckets are ideal for high-speed conveying systems, where centrifugal force ensures efficient and continuous material discharge. This makes them particularly suitable for powder and light bulk materials.
Engineering Consideration
The selection of DQ buckets depends on:
- Elevator running speed
- Material type (powder vs particle)
- Bucket spacing
- Head pulley diameter
Proper matching of these factors ensures optimal conveying efficiency.
DQ Type vs Other Elevator Buckets
Compared with other bucket types, we offer a complete range of elevator buckets for different capacity requirements and system standards. We offer both inch size and metric size bucket types to match different system standards:
- D type – deep bottom bucket in inch size, recommended for high-capacity conveying and heavy-duty applications
- S type – shallow bottom bucket in inch size, suitable for light bulk materials and stable, gentle conveying
- DS type – deep bottom bucket in metric size, suitable for high-capacity conveying in metric system installations
- M type – medium-capacity bucket in metric size, ideal for balanced conveying where both capacity and discharge control are required
- DQ type – shallow bottom bucket in metric size, suitable for lower capacity and more controlled discharge applications
This range allows customers to select the most suitable bucket type based on capacity, material characteristics, and system standards.
You may also be interested in
- S Type Elevator Bucket S Type Elevator Bucket (Shallow Bottom, Inch Size)
- CC Type Elevator Bucket CC Type Elevator Bucket (Tapco CC Style, High Efficiency)
- DS Type Elevator Bucket DS Type Elevator Bucket (Deep Bottom, Metric Size)
- DQ Type Elevator Bucket DQ Type Elevator Bucket (Shallow Bottom, Metric Size)
- Elevator Bucket Fang Bolts
- PVC Elevator Belt
DQ Steel vs Plastic Shallow Bottom Elevator Buckets
(DQ & S Type Comparison)
| Feature | DQ Steel Bucket (Shallow Bottom) | S Plastic Bucket (Metric) | DQ Plastic Bucket (Inch Size) |
|---|---|---|---|
| Material | Carbon steel / Stainless steel | HDPE / Nylon / PU | HDPE / Nylon / PU |
| Manufacturing Method | One-piece stamping (deep drawing) | Injection molded | Injection molded |
| Structure | Seamless, high strength | Lightweight, integrated | Lightweight, integrated |
| Weight | Heavy | Light | Light |
| Strength | Very high, suitable for heavy-duty use | Moderate | Moderate |
| Wear Resistance | Excellent for abrasive materials | Good | Good |
| Corrosion Resistance | Lower (needs coating or SS) | Excellent (non-corrosive) | Excellent (non-corrosive) |
| Capacity Design | Shallow bottom, fast discharge | Optimized for clean discharge | Shallow bottom, standard DQ type |
| Size Standard | Metric sizes | Metric sizes | Inch sizes |
| Customization | Limited (mold-based) | Limited | Limited |
| Application | Cement, sand, industrial bulk handling | Grain, feed, agriculture | Grain, feed, standard conveying |
| Temperature Resistance | High temperature suitable | Medium (depends on material) | Medium (depends on material) |
| Cost | Higher initial cost, long service life | Lower | Lower |
FAQ – DQ Shallow Bottom Elevator Bucket
What is a DQ elevator bucket?
A DQ elevator bucket is a shallow bottom bucket designed for bucket elevator systems using centrifugal discharge. It is commonly used in high-speed conveying applications for powder and light bulk materials.
What materials are available for DQ elevator buckets?
DQ elevator buckets are commonly manufactured in HDPE, Nylon and PU materials. HDPE offers lightweight performance, Nylon provides higher wear resistance, and PU delivers excellent impact resistance and long service life.
What applications are DQ elevator buckets used for?
DQ elevator buckets are widely used in powder conveying, grain handling, feed processing, agricultural bulk material systems and other light material conveying applications.
What is the difference between DQ and DS elevator buckets?
DQ elevator buckets feature a shallow bottom design and are suitable for centrifugal discharge in high-speed systems. DS elevator buckets have a deep bottom design and are commonly used for gravity discharge in lower-speed conveying applications.
Are DQ elevator buckets suitable for high-speed bucket elevators?
Yes. DQ elevator buckets are specifically designed for high-speed bucket elevator systems where centrifugal force is used for material discharge.
How do I choose the correct DQ elevator bucket size?
Bucket size selection depends on belt width, elevator speed, pulley diameter, material density and required conveying capacity. Metric A, B and C dimensions are commonly used to determine the correct model.
Are DQ elevator buckets suitable for powder materials?
Yes. DQ elevator buckets are particularly suitable for powder and light bulk materials because the shallow bottom design supports efficient centrifugal discharge.
Not sure which bucket type fits your system?
Send us your requirements, and we’ll help you select the most suitable solution.
Related Blog:
How to select the plastic bucket of the bucket elevator correctly?




















