- +86 13962947398
- sales@yutungindustrial.com
- WhatsApp 7day-24h
DM Type Rice Mill Bucket Overview
DM type rice mill bucket is specially designed for rice processing applications, where gentle material handling is essential. It adopts a sliding discharge mechanism to reduce grain breakage and maintain the quality and appearance of rice.
Working Principle
Unlike conventional buckets that discharge materials by dropping, DM buckets use a sliding transfer method. The material from the rear bucket flows smoothly into the next bucket, forming a continuous and controlled conveying process.
This design eliminates sudden impact and reduces mechanical stress on the grains.
Performance Advantage
The sliding discharge design significantly reduces grain breakage and helps maintain the visual quality of rice, which is critical in rice milling applications.
- Lower damage rate of rice
- Improved product appearance
- Gentle and controlled material flow
- Reduced impact during discharge
Applications
DM type buckets are widely used in:
- Rice milling systems
- Grain processing lines
- Agricultural material handling systems requiring gentle conveying
Use advice
- It is used for low-speed gravity-style material lifting style;
- Recommend the bucket installation distance, the height of the bucket back height C size+15mm;
- Recommend linear speed 0.5-0.8m/s;
- Recommend “capacity (L) ” as the use capacity for your engineering design.
- Below the table, the size is for HDPE material. Because of the differences in the material shrinkage, the Nylon and PU elevator bucket size is approximately more than 2%.
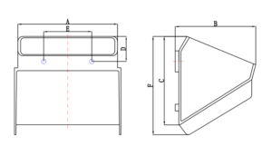
Technical Drawing
Specifications
| Model | Bucket Dimension(mm) | Mounting Holes(mm) | Capacity(L) | |||||
|---|---|---|---|---|---|---|---|---|
| Length A |
Proj. B |
Depth C |
From Top D |
Hole Centres E |
No. of Holes |
Hole diameter |
Water Level (Z-Y) |
|
| DM1010 | 105 | 110 | 129 | 48 | 50 | 2 | 9 | 0.70 |
| DM1310 | 141 | 113 | 124 | 37 | 80 | 2 | 7 | 0.95 |
| DM1413 | 140 | 141 | 168 | 52 | 93 | 2 | 9 | 1.60 |
| DM1715 | 175 | 156 | 170 | 52 | 113 | 2 | 9 | 2.30 |
| DM2017 | 207 | 177 | 187 | 60 | 139 | 2 | 9 | 3.40 |
| DM2313 | 234 | 135 | 136 | 44 | 125 | 2 | 7 | 2.00 |
| DM2419 | 244 | 190 | 188 | 65 | 90 | 3 | 9 | 4.90 |
| DM2917 | 290 | 176 | 194 | 60 | 110 | 3 | 9 | 5.30 |
| DM2921 | 294 | 210 | 194 | 55 | 113 | 3 | 9 | 6.00 |
Note: Installation holes and hole diameter can be customized.
👉 Not sure which bucket fits your system?
Tell us your application or required size — we will recommend the right model within 24 hours.
Design Background
The DM bucket follows a design originally developed by Satake in Japan, where gentle material transfer is used to reduce grain damage and preserve rice appearance during conveying.
It has been proven effective in reducing grain damage and improving final product quality.
Engineering Considerations
For optimal performance, the following factors should be considered:
- Elevator speed
- Material characteristics (fragile grains)
- Bucket spacing
- System configuration
DM vs DH vs DX Bucket Comparison
Different bucket designs are developed for specific applications in grain processing and drying systems:
- DM type – designed for rice milling applications, using a sliding discharge method to ensure gentle conveying and minimize grain damage, especially for maintaining rice appearance
- DH type – designed for low-temperature grain drying systems, providing stable and gentle conveying to reduce damage during the drying process
- DX type – designed for high-temperature drying applications, combining high capacity with low-damage conveying for dried grain, feed, and seed materials
| Bucket Type | Application | Key Feature | Working Condition |
|---|---|---|---|
| DM | Rice milling | Sliding discharge, ultra low damage | Normal temperature |
| DH | Grain drying | Gentle conveying, low damage | Low-temperature drying |
| DX | Grain drying | High capacity + low damage | High-temperature drying |
These bucket types are widely used in advanced grain processing and drying systems, with design concepts derived from technologies developed by companies such as KANEKO (Japan) and SUNCUE (Taiwan).
Looking for a solution to reduce grain damage in your system?
Send us your requirements, and we’ll help you select the most suitable bucket design.
Related Blog:
How to select the plastic bucket of the bucket elevator correctly?






















